Denderleeuw – nieuwbouwwoning
Beschikbaar: bij oplevering
Halfopen bebouwing – Lot 2
Orchideeënlaan 6
9470 Denderleeuw
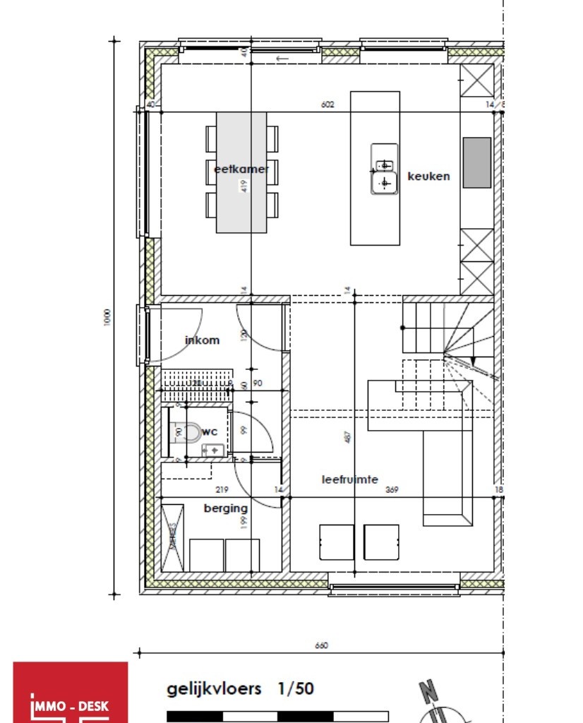
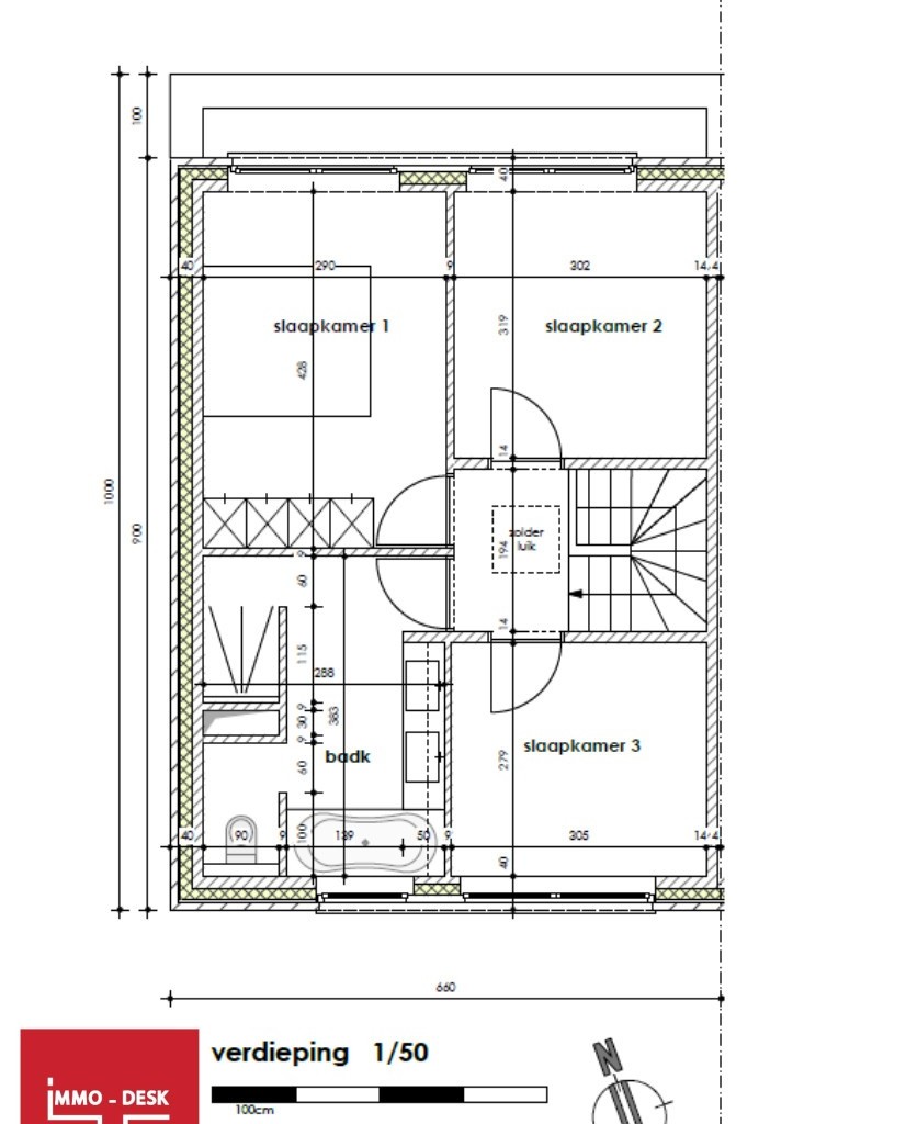
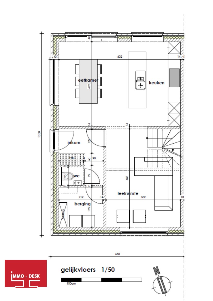
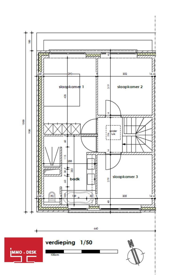
Heeft u altijd al energiezuinig en rustig willen wonen? Maak dan zeker kennis met deze residentieel gelegen halfopen bebouwing (nieuw te bouwen) in een rustige, groene omgeving (doodlopende straat) te Denderleeuw en dichtbij belangrijke invalswegen (E40, N45). Deze 3-gevel woning houdt rekening met tal van factoren. Zo kiest u bijvoorbeeld zelf het ontwerp en de afwerking die het best bij u passen en staat er een sterk accent op comfort, lichtinval, milieuvriendelijkheid en kwalitatieve materialen. Het gelijkvloers van de voorbeeldwoning omvat een inkomhal, grote leefruimte met open keuken en prachtig zicht op de tuin. Buiten is er ook ruimte voor 2 autostaanplaatsen voorzien. Verder is er op de benedenverdieping een gastentoilet en berging. Met drie slaapkamers, badkamer, apart toilet en berging op de verdieping en nog een zolderverdieping sluit het ontwerp perfect aan bij de noden van ieders wensen.
Graag bespreken wij met u de plannen en mogelijkheden. Contacteer ons gerust voor meer inlichtingen: 0498/91 12 34 of info@immo-desk.be. De opgegeven prijs is excl. registratierechten op de grond en BTW op de constructiewaarde en wanneer er gebouwd wordt volgens huidig plan en volgens de afwerking/ materialen voorgesteld in het lastenboek, met inbegrip van ingerichte keuken, badkamer, toiletten, centrale verwarming, zonnepanelen, driedubbele beglazing , ….

Hoofdkenmerken
- Oppervlakte terreinca. 274 m²
- Bewoonbare opp.ca. 184 m²
- BebouwingHalfopen
- Aantal slaapkamers3
- Bouwjaar2023
- TuinJa
- TerrasJa
- Parkeerplaatsen2

Bijkomende informatie
- Stedenbouwkundige vergunning/
omgevingsvergunning uitgereiktNeen - Stedenbouwkundige bestemmingWoongebied
- Rechterlijke of bestuurlijke maatregelNeen
- DagvaardingenNeen
- VoorkooprechtNeen
- Verkavelingsvergunning/
omgevingsvergunning voor het
verkavelen van grondenJa - Afgebakend overstromingsgevoeligNeen
- Afgebakende oeverzoneNeen
- P-scoreC
Energie
-
1600
- E-peil20
- VerwarmingWarmtepomp
- BeglazingDriedubbel
- ZonnepanelenJa












