info@immo-desk.be

053 78 75 68

Wiezeplein 13, 9280 Wieze

Dilbeek – 2 nieuwbouwwoningen in groene omgeving

Op een steenworp van het centrum van Sint-Ulriks-Kapelle

Brusselstraat 654
1700 Dilbeek

vanaf 526.800€

Deze woningen bevinden zich op een steenworp van het centrum van Sint-Ulriks-Kapelle, een charmant dorpje doordrenkt van natuurlijke schoonheid. De woningen worden volledig op maat én sleutel-op-de-deur gebouwd waarbij de bouwstijl, indeling en zelfs de keuze van materialen en kleuren worden aangepast aan uw wensen, alles onder professionele begeleiding.
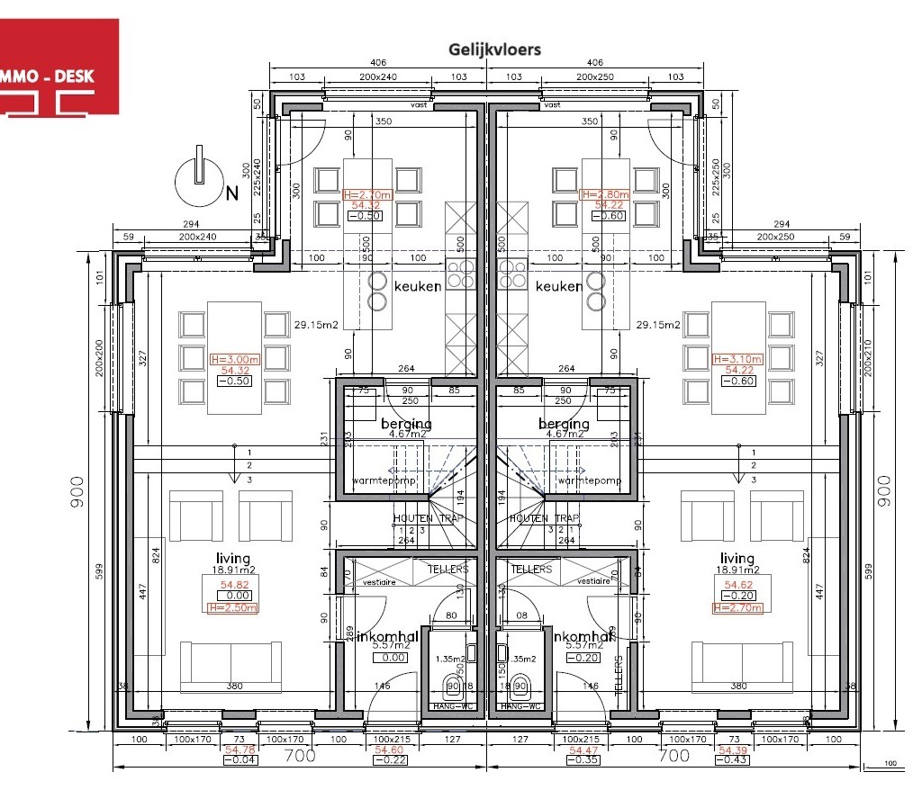
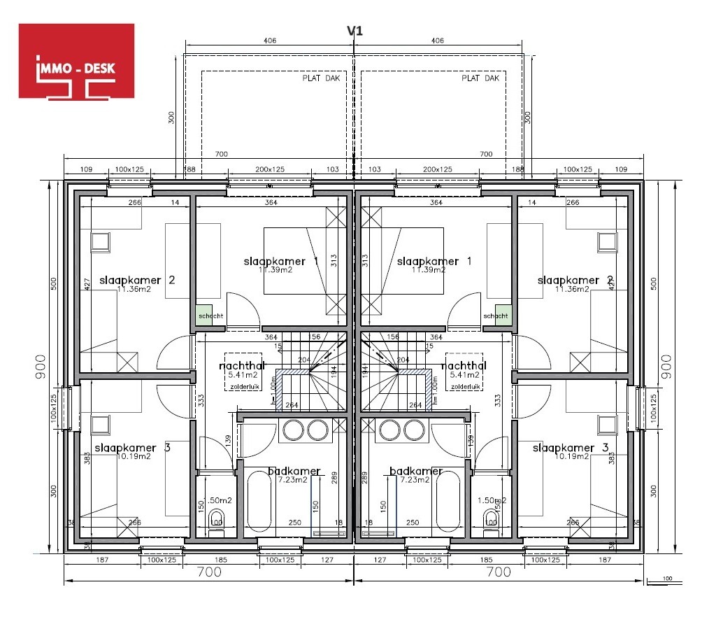
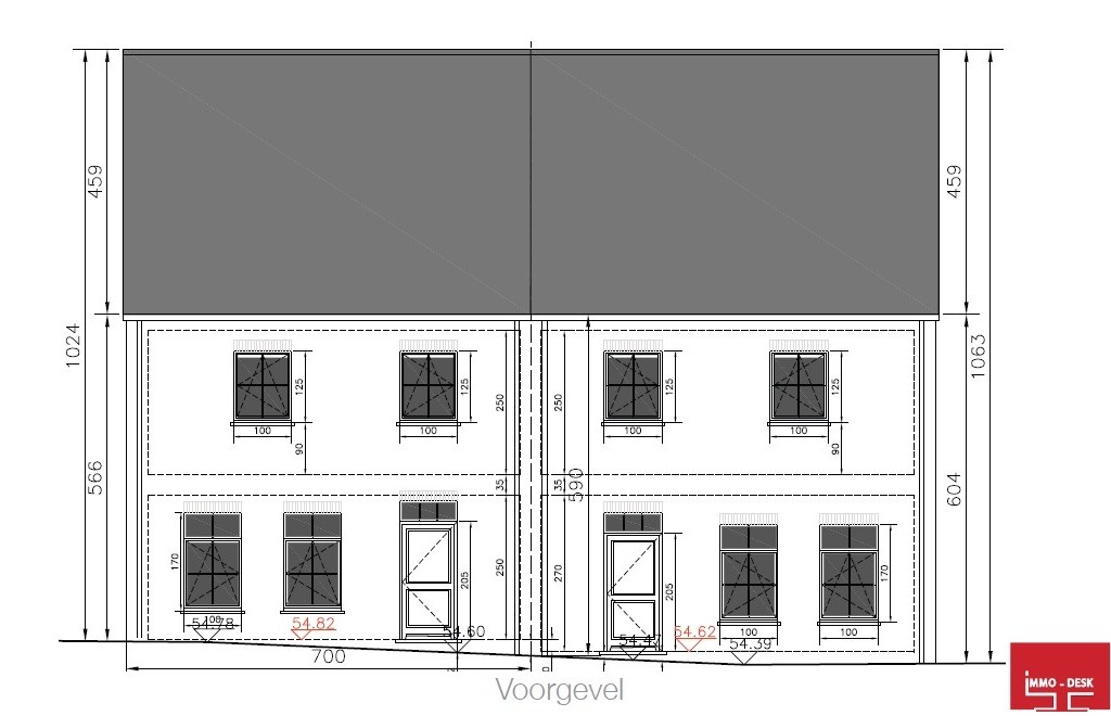
De voorbeeldwoning bestaat uit een ruime inkomhal, een open keuken, een leefruimte, een berging en een gastentoilet op de begane grond. Op de eerste verdieping bevindt zich een nachthal, drie slaapkamers, een toilet en een badkamer. De zolderverdieping biedt een volwaardige ruimte. Buiten is er een aangename tuin en voldoende ruimte voor een parkeerplaats.
Omgeven door weelderige velden en groene landschappen, biedt deze omgeving een betoverende setting voor natuurliefhebbers. En voor wie af en toe behoefte heeft aan de bruisende energie van de stad, ligt Brussel slechts op 11 km afstand. Bovendien zijn zowel de E40 als de E19 binnen 8 minuten bereikbaar met de auto, terwijl gebruikers van het openbaar vervoer een bushalte vinden op slechts 100 meter afstand.
De vermelde prijzen zijn exclusief registratierechten op de grond en BTW op de constructiewaarde. Deze prijzen gelden voor de bouw volgens het huidige plan en conform de afwerking en materialen zoals gespecificeerd in het lastenboek. Dit omvat onder andere een volledig ingerichte keuken, badkamer, toiletten, centrale verwarming, zonnepanelen, driedubbele beglazing, warmtepomp en vloerverwarming op het gelijkvloers en in de badkamer.
Wij nodigen u graag uit voor een gesprek waarin we de plannen en mogelijkheden kunnen bespreken om een huis te bouwen dat niet alleen duurzaam en energiezuinig is, maar ook futureproof: klaar voor de toekomst en ontworpen met het oog op de komende generaties

Voortgang project

We nemen u graag mee in de voortgang van het project. Kom zeker regelmatig eens kijken!

Units/Woningen

Prijs

Bewoonbare oppervlakte

Slaapkamers

Verdieping

Tuin

Terras

E-peil

Pand Nr.

Link

592.200€
175 m²
3
/
Ja
Ja
20
Lot 1
526.800€
175 m²
3
/
Ja
Ja
20
Lot 2

Pand nr. Lot 1

Beschikbaar bij oplevering 592.200€
Bewoonbare opper. ca. 175 m²
Slaapkamers 3
Verdieping /
Terras Ja
Tuin Ja
E-peil 20

Pand nr. Lot 2

Beschikbaar bij oplevering 526.800€
Bewoonbare opper. ca. 175 m²
Slaapkamers 3
Verdieping /
Terras Ja
Tuin Ja
E-peil 20

Contacteer ons gerust voor meer inlichtingen:

0498/91 12 34 of info@immo-desk.be