Lippelo – 2 halfopen bebouwingen
Prachtig groenzicht
Provincialeweg (Links van nr 95)
2890 Sint-Amands (Puurs)
Te koop: 2 nieuw te bouwen halfopen bebouwingen in Lippelo.
Deze BEN- woningen (Bijna EnergieNeutrale woningen) zijn nog nieuw te bouwen waardoor u zelf het ontwerp en de afwerking die het best bij u passen in de hand hebt en dit alles onder professionele begeleiding van A tot Z.
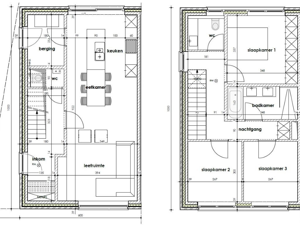
De voorbeeldwoning bestaat uit een ruime inkomhal, open keuken, leefruimte, berging en gastentoilet. Op de 1ste verdieping is er een ruime nachthal, 3 slaapkamers en badkamer. Verder is er nog een zolderverdieping. Carport of garage mogelijk bij Lot 1. Residentieel gelegen, prachtig groenzicht. Op 4 minuten van het centrum van Liezele en Oppuurs. Snelle verbinding via A12 richting Brussel, Mechelen en Antwerpen. De opgegeven prijzen zijn excl. registratierechten op de grond en BTW op de constructiewaarde en wanneer er gebouwd wordt volgens huidig plan en volgens de afwerking/ materialen voorgesteld in het lastenboek, met inbegrip van ingerichte keuken, badkamer, toiletten, centrale verwarming, zonnepanelen, driedubbele beglazing, warmtepomp en vloerverwarming op het gelijkvloers en in de badkamer.
Graag bespreken wij met u de plannen en mogelijkheden.


Voortgang project
We nemen u graag mee in de voortgang van het project. Kom zeker regelmatig eens kijken!
Units/Woningen
Pand nr. Lot 1

| Bewoonbare opper. | ca. 170 m² |
| Slaapkamers | 3 |
| Verdieping | / |
| Terras | Ja |
| Tuin | Ja |
| E-peil | 20 |
Pand nr. Lot 2

| Bewoonbare opper. | ca. 170 m² |
| Slaapkamers | 3 |
| Verdieping | / |
| Terras | Ja |
| Tuin | Ja |
| E-peil | 20 |












