Lot 3 (Links)
Beschikbaar: Tweede helft 2026
Poelstraat 12B
9280 Lebbeke
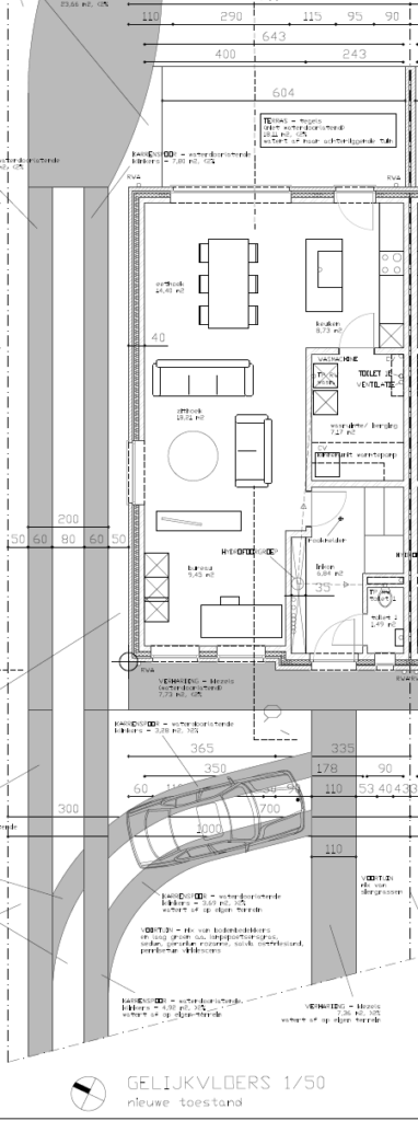
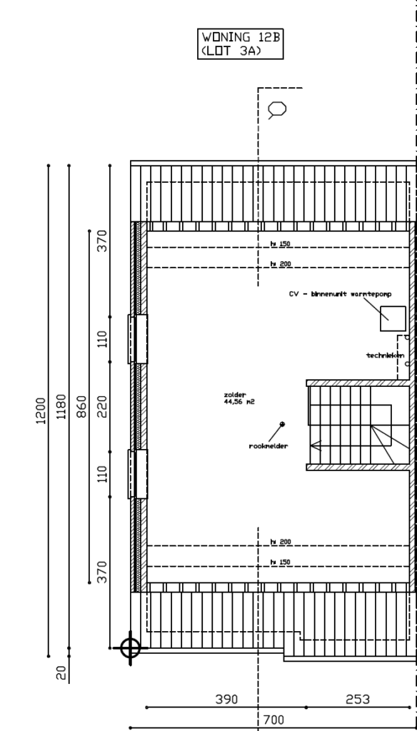
Landelijke eengezinswoning gelegen in een rustige, residentiële omgeving. Deze halfopen bebouwing wordt casco geleverd: in ruwbouw, water -en winddicht. De grond heeft een oppervlakte van ca 889 m² (Lot 3 – Links bij vooraanzicht). Het gelijkvloers omvat een ruime inkomhal met gastentoilet, grote leefruimte met eet-en zithoek, bureau, keuken en berging. Op de 1ste verdieping is er een ruime nachthal, 3 slaapkamers, waarvan de master bedroom telkens met dressing, een apart toilet en badkamer (met ruimte voor zowel bad als douche). De ruime zolderverdieping is bereikbaar via een vaste trap en leent zich tot extra slaapkamer/hobbyruimte. Buiten is er nog een aangename tuin.
Prijzen excl. Registratie op de grond, 21% BTW op de constructie en notariskosten. Casco-staat. De afwerking van de woning (zoals technieken, vloeren, binnendeuren, keuken, sanitair, …) kan reeds vanaf 115.000€ excl. BTW uitgevoerd worden door derde partijen/aannemers.


Voortgang project
We nemen u graag mee in de voortgang van het project. Kom zeker regelmatig eens kijken!
Hoofdkenmerken
- Oppervlakte terreinca. 889 m²
- Bewoonbare opp.ca. 210 m²
- BebouwingHalfopen
- Aantal slaapkamers3
- Bouwjaar2026
- TuinJa

Bijkomende informatie
- Stedenbouwkundige vergunning/
omgevingsvergunning uitgereiktJa - Stedenbouwkundige bestemmingWG- Agr - Ng
- Rechterlijke of bestuurlijke maatregelNeen
- DagvaardingenNeen
- VoorkooprechtNeen
- Verkavelingsvergunning/
omgevingsvergunning voor het
verkavelen van grondenJa - Afgebakend overstromingsgevoeligNeen
- Afgebakende oeverzoneNeen
- P-scoreA
- Bestuursmaatregelen in het maatregelenregisterNee
Energie
-
1600
- EnergieklasseA
- BeglazingDubbele beglazing














