info@immo-desk.be

053 78 75 68

Wiezeplein 13, 9280 Wieze

Lebbeke – Twee ruime nieuwbouwwoningen

Poelstraat 12C
9280 Lebbeke

Vanaf 423.000€

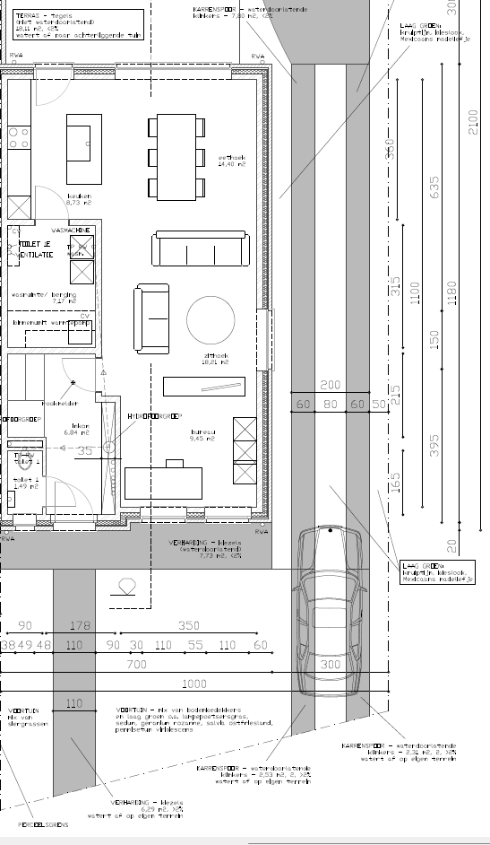
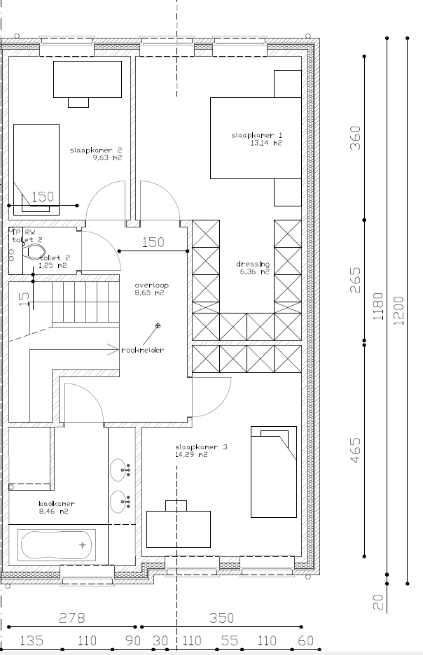
Twee landelijke eengezinswoningen gelegen in een rustige, residentiële omgeving.  Deze halfopen bebouwingen worden casco geleverd: in ruwbouw, water -en winddicht.  De gronden hebben een oppervlakte van respectievelijk 889 m² (Lot 3 – Links bij vooraanzicht) en 802m² (Lot 4 – Rechts bij vooraanzicht). Het gelijkvloers omvat een ruime inkomhal met gastentoilet, grote leefruimte met eet-en zithoek, bureaukeuken en berging.   Op de 1ste verdieping is er een ruime nachthal3 slaapkamers, waarvan de master bedroom telkens met dressing, een apart toilet en badkamer (met ruimte voor zowel bad als douche).  De ruime zolderverdieping is bereikbaar via een vaste trap en leent zich tot extra slaapkamer/hobbyruimte.  Buiten is er nog een aangename tuin.
Prijzen excl. Registratie op de grond, 21% BTW op de constructie en notariskosten. Casco-staat.  De afwerking van de woning (zoals technieken,  vloeren, binnendeuren, keuken, sanitair, …) kan reeds vanaf 115.000€ excl. BTW uitgevoerd worden door derde partijen/aannemers.

Voortgang project

We nemen u graag mee in de voortgang van het project. Kom zeker regelmatig eens kijken!

Units/Woningen

Prijs

Bewoonbare oppervlakte

Slaapkamers

Verdieping

Tuin

Terras

E-peil

Pand Nr.

Link

429.000€
210 m²
3
/
Ja
/
/
Lot 3 (Links)
423.000€
210 m²
3
/
Ja
/
/
Lot 4 (Rechts)

Pand nr. Lot 3 (Links)

Beschikbaar Tweede helft 2026 429.000€
Bewoonbare opper. ca. 210 m²
Slaapkamers 3
Verdieping /
Terras /
Tuin Ja
E-peil /

Pand nr. Lot 4 (Rechts)

Beschikbaar Tweede helft 2026 423.000€
Bewoonbare opper. ca. 210 m²
Slaapkamers 3
Verdieping /
Terras /
Tuin Ja
E-peil /

Contacteer ons gerust voor meer inlichtingen:

0498/91 12 34 of info@immo-desk.be